Residential Architect

Montana Mountainside

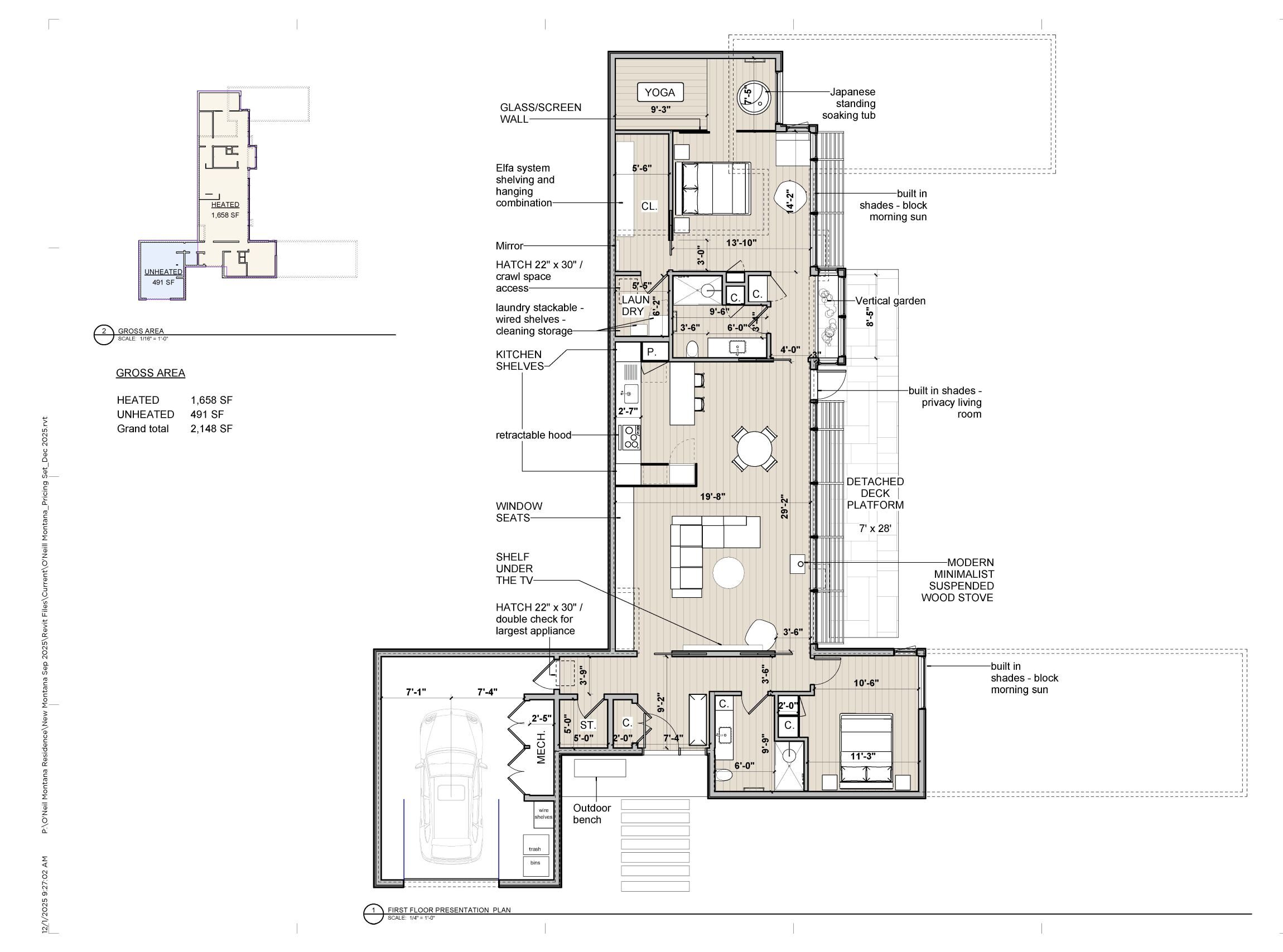
Montana Mountainside

Paradise Valley, MT

Set against the vast horizon of Paradise Valley, this home was conceived as a quiet frame for the landscape rather than an object within it.
 
The architecture embraces minimalism, not through excess space, but through intentional quality. Every room is carefully proportioned, prioritizing light, materiality, and connection over square footage. The design resists grandeur and instead focuses on calm, clarity, and presence.
 
A fully glazed south wall opens the home to uninterrupted views of the valley and surrounding mountains, dissolving the boundary between interior and exterior. The deep roof overhang protects this transparent façade from the intensity of the Montana summer sun, allowing winter light to penetrate while tempering heat during warmer months.
 
The building sits gently within the terrain, integrating with the natural landscape rather than competing with it. Materials were selected to echo the surrounding earth tones, reinforcing a sense of permanence and belonging.
 
This is a home designed not to dominate Paradise Valley, but to belong to it.
Close