Residential Architect

Concept New Construction

New Construction

In design.

The unique character of this new house in Concord, Massachusetts was derived from the re-use and re-habilitation of a nineteenth century antique barn timber frame salvaged from a historic property in Carlisle, Massachusetts. The central barn-like element of the house uses that frame as a distinctive feature of the interior of the living, dining, and kitchen areas with a loft above. Additional wings off the central element contain bedrooms and a garage.

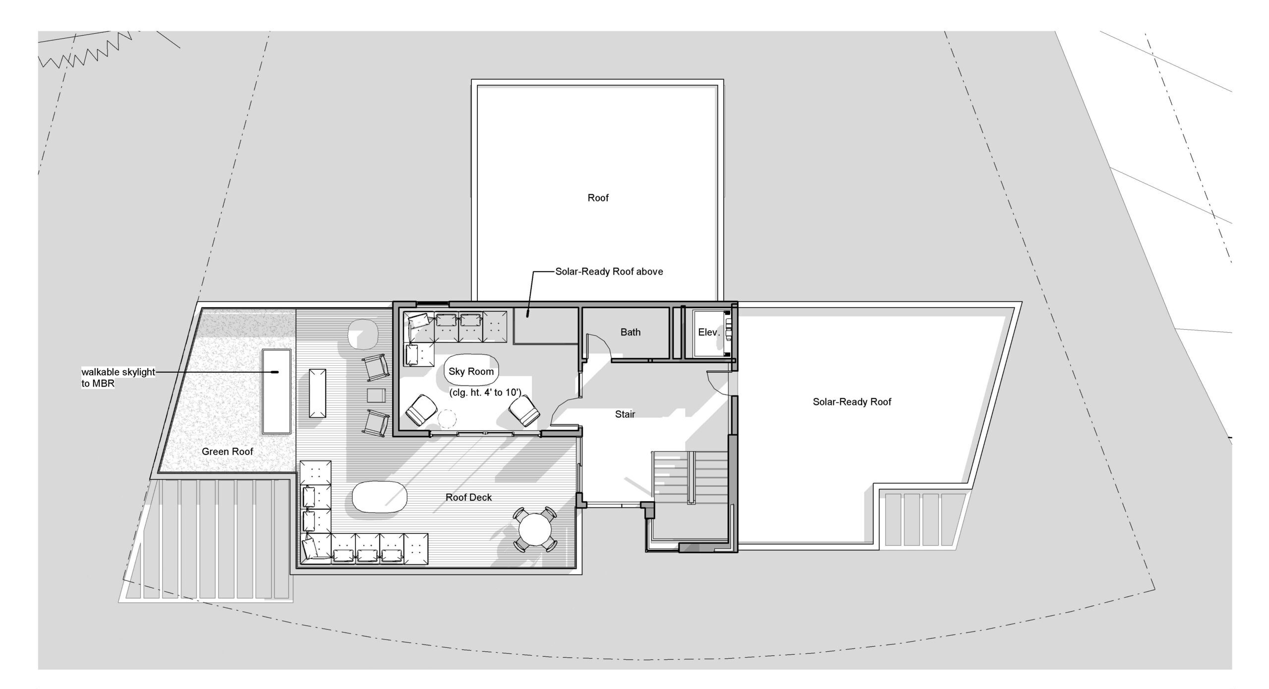
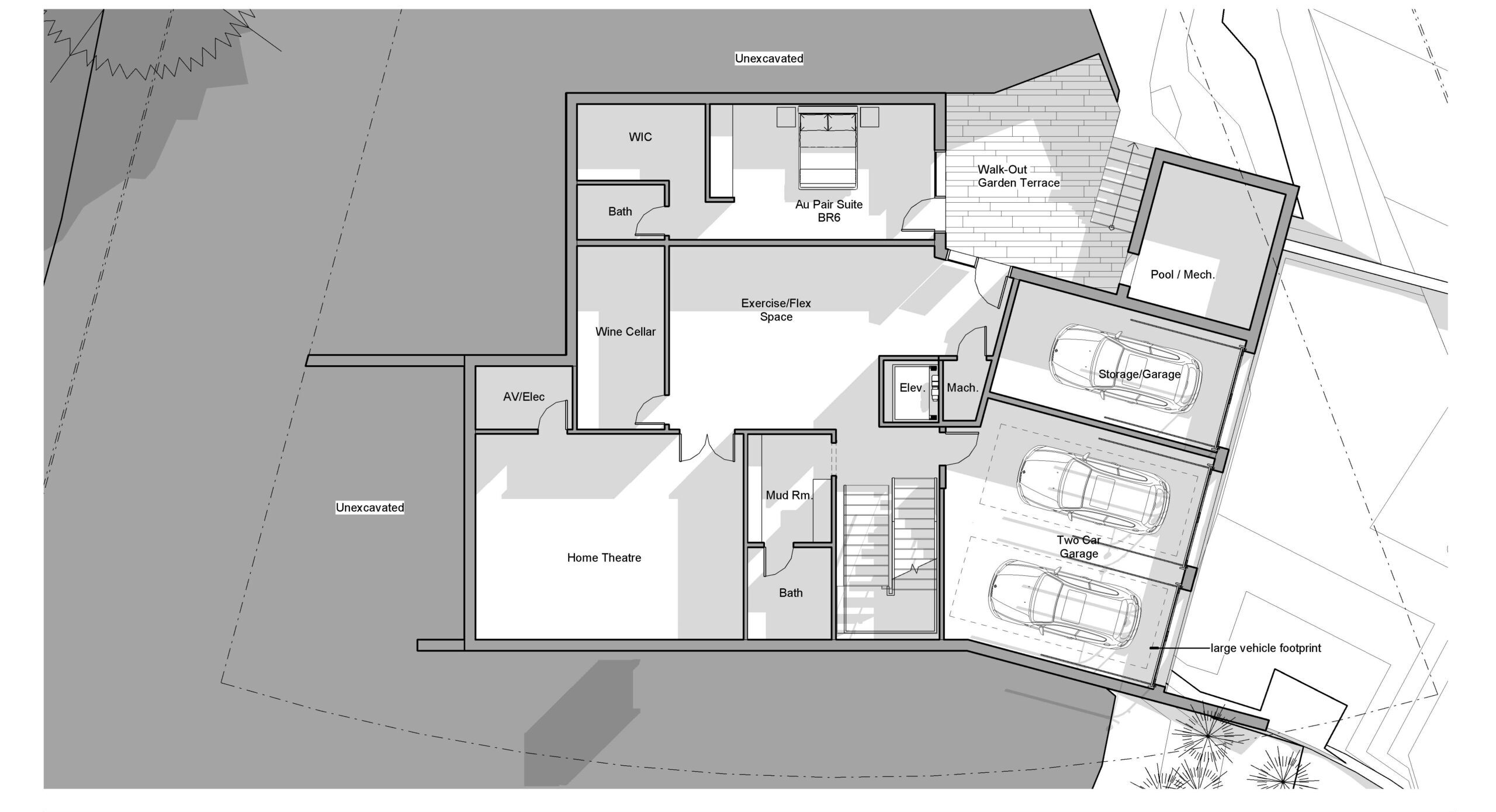
Renderings below.

Close